TOJI
Designed BySUPPOSE DESIGN OFFICE3 bathrooms
252.28㎡ (2715.52 sq ft)
Atop a peak in Minakami, where the Tone River begins its journey, there is a quintet of structures that looks out on the beauty of the valley below.
TOJI is SUPPOSE DESIGN OFFICE's contemporary re-imagining of the hot spring village.

Designer
SUPPOSE DESIGN OFFICE
Renowned designer Makoto Tanjiri established SUPPOSE DESIGN OFFICE, a design firm operating out of Hiroshima and Tokyo, in 2000. Tanjiri and his team are involved in multiple projects in Japan and abroad, including interiors, housing, and complex facilities. He has been co-directing the firm with Ai Yoshida since 2014. In addition to his work at SUPPOSE DESIGN OFFICE, he is also involved in academia and various industries, where he applies his expertise in bridging business and design.
Features
Overview
Architectural ode to water
Living
A 180-degree panorama and an infinity pool
Bath
Everyday use of natural hot springs
Sauna
Exclusive sauna with a breathtaking view
Bedroom
Bedroom overlooking the four seasons
Interior
An advanced wooden roof structure with a 6-meter ceiling height.
Exterior
Copper plate 'Ichimonji-buki' roofing - a facade that marks the passage of time
Getting there
Travel time from Tokyo
Address: Ishikura, Minakami Town, Tone District, Gunma Prefecture, Japan
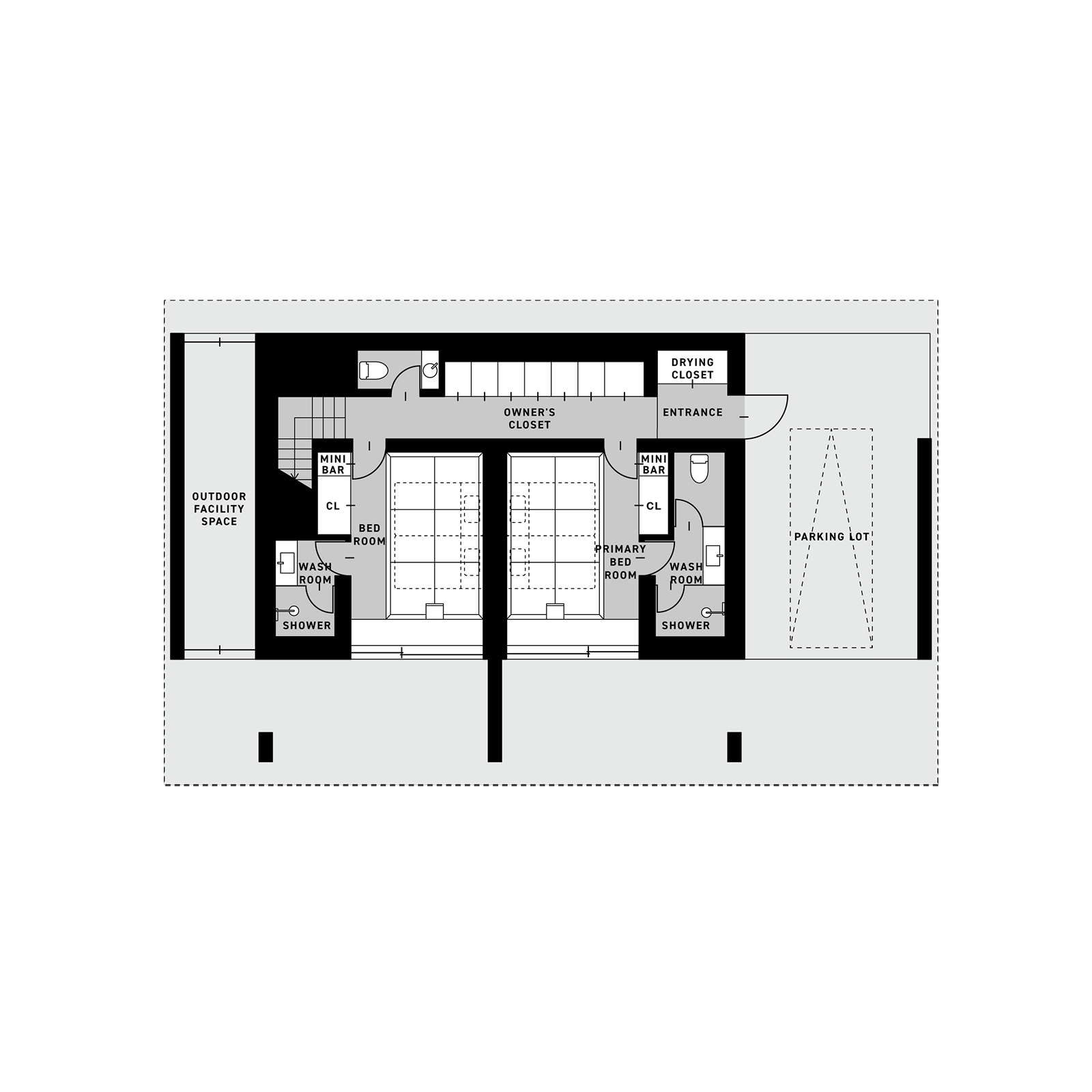
Masterplan

SIZE AND LAYOUT
Interior size: 175.19㎡ (1885.73 sq ft)Total area: 252.28㎡ (2715.52 sq ft)
2 bedrooms3 bathrooms
KEY AMENITIES
Panoramic mountain viewOutdoor hot spring bath (onsen)Indoor fireplaceFull, modern kitchenDining table for 8 guests

LOCATION
A Scenic Haven at the Peak of Minakami

Landscape
Experience spring, summer, fall, and winter from your living room

Restaurant
A wood-fired restaurant to savor with your senses











